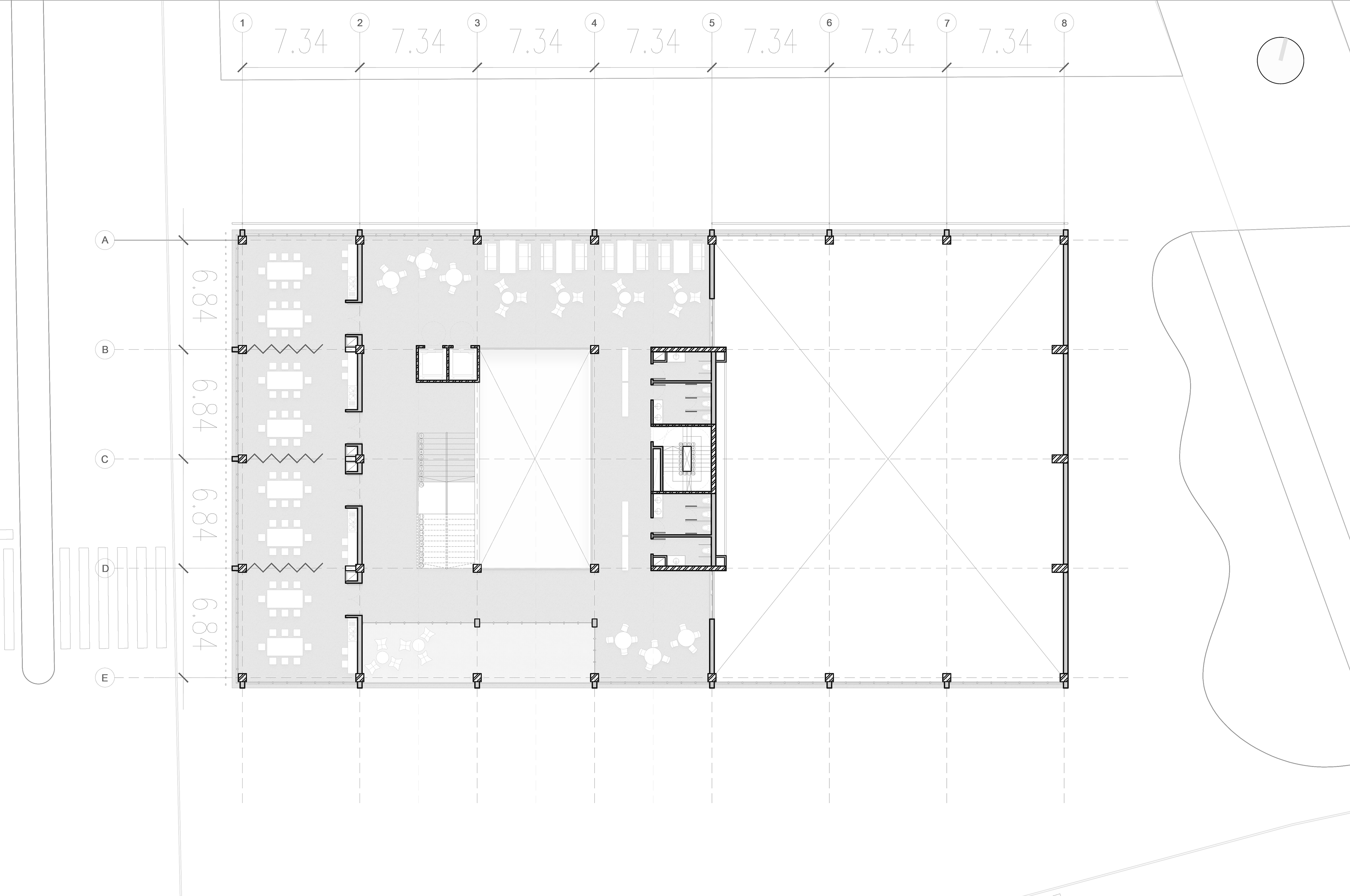
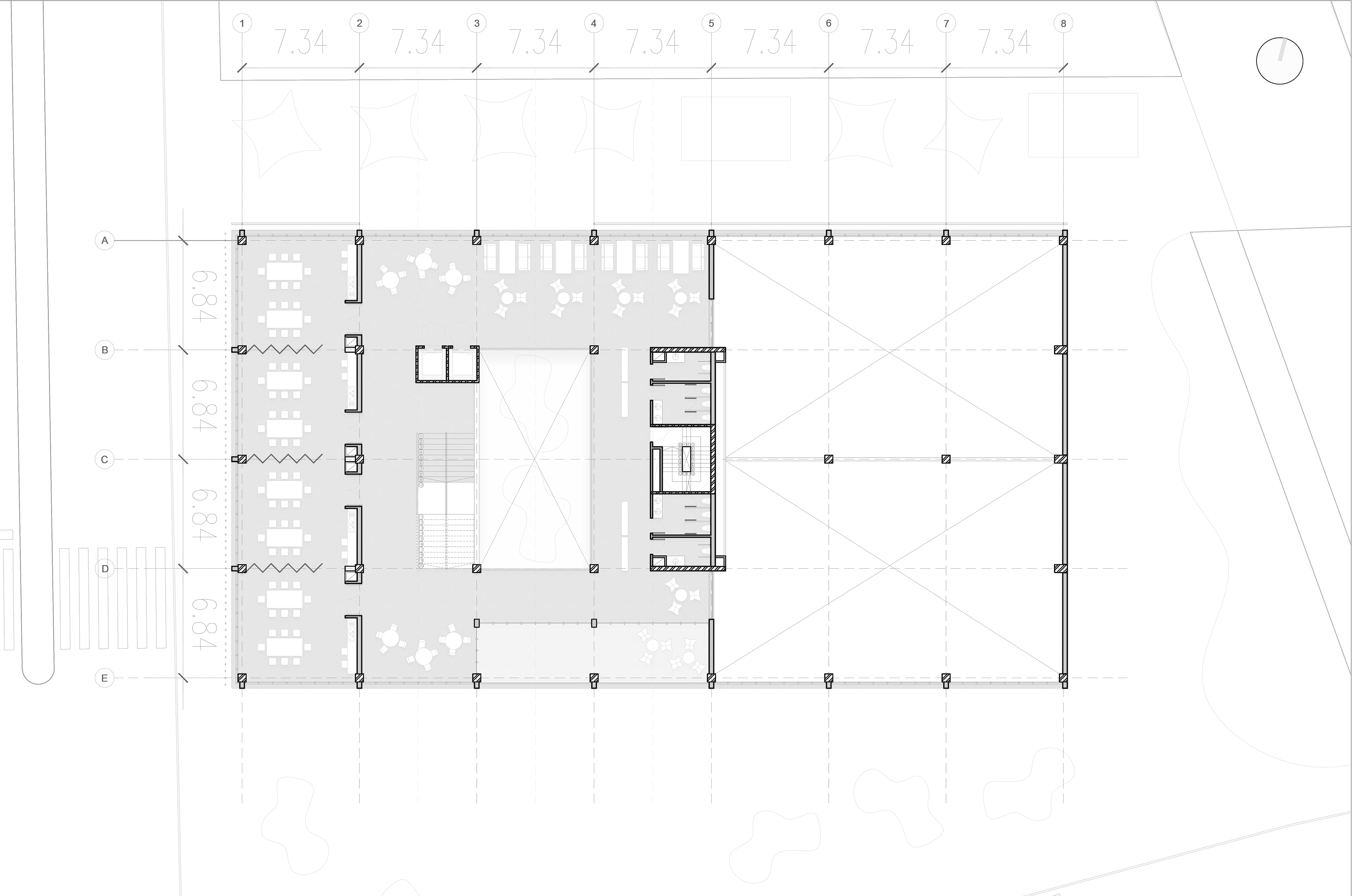
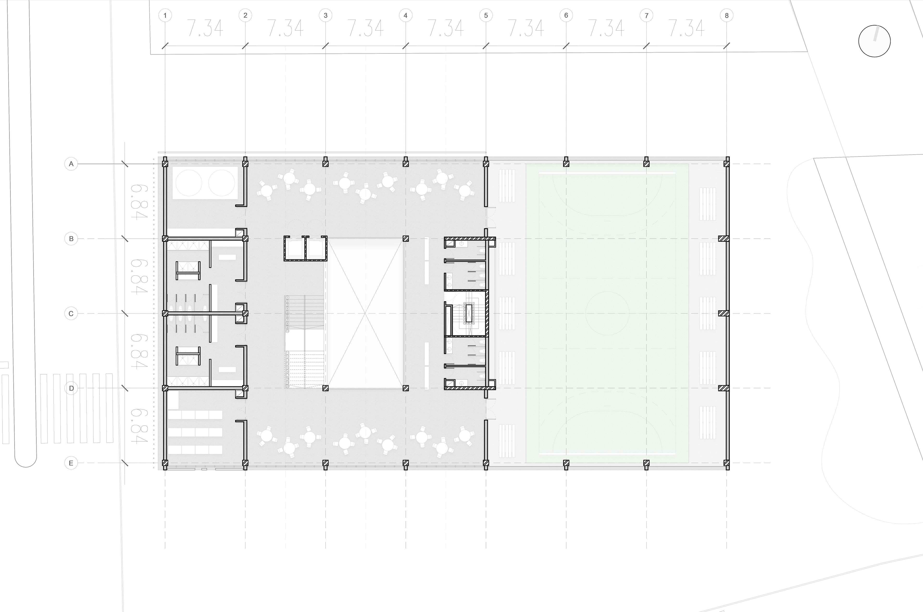
Centro de integración comunitaria
Este proyecto de equipamiento, ubicado en La Boca, fue realizado para la cátedra Explora (F.A.D.U.) en el año 2021.
Este proyecto de equipamiento, ubicado en La Boca, fue realizado para la cátedra Explora (F.A.D.U.) en el año 2021.